jutta heinze architektin bda
aktuell
profil
architektur
wettbewerbe
projekte
realisierungen
publikationen
impressum
datenschutz
bürobroschüre pdf
|
IMM
|
zurück
zurück
|
lageplan
|
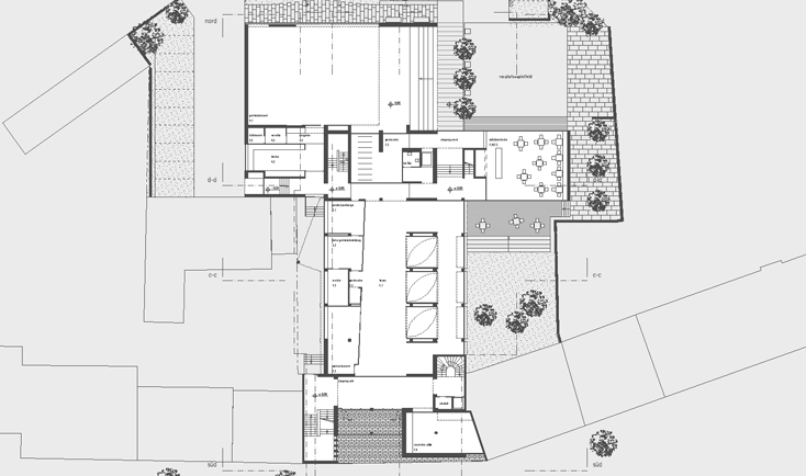
eg
|
og
|
2.og
|
ansichten
|
schnitte
|